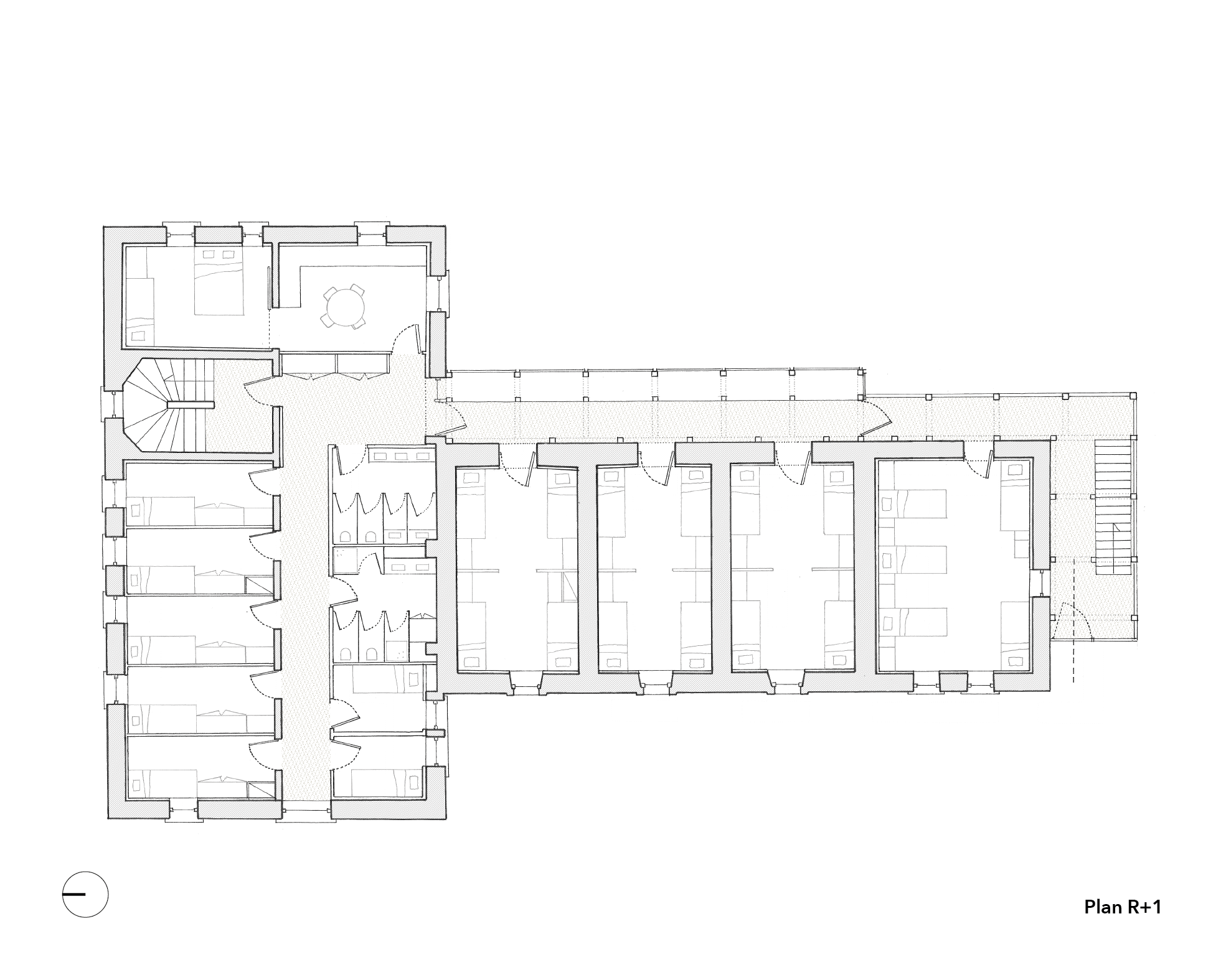
La rénovation ou la construction d’un refuge de montagne doit être abordé avec beaucoup d’humilité, de bon sens et d’efficacité. Le terme refuge convoque avant tout l’idée d’abri minimum permettant la protection de ses occupants face à un milieu hostile. Ces dernières décennies ont démocratisé l’expérience de la montagne et les refuges se sont modernisés. Il est nécessaire de cultiver le caractère essentiel de ces lieux et d'aborder leur rénovation avec l’idée du juste nécessaire à la pérennité de l’ouvrage et du service rendu. La sobriété n’empêche cependant pas d’offrir des espaces conviviaux, de révéler des situations remarquables et d’offrir aux visiteurs une expérience mémorable.
Dans cet esprit d’économie de moyens, de matière et d’énergie, nous voyons le refuge des Cortalets comme une machine à habiter autonome capable de faire rêver ses visiteurs en les projetant du pic du Canigo à la Méditerranée.
A l’image d’un voilier dont la forme émane de ses besoins, le projet de rénovation du refuge est envisagé comme une structure simple, fonctionnelle, tirant partie des ressources du milieu de manière passive et pilotée par une équipe active.
Cette approche rationnelle de l’exploitation s’applique également au chantier et à sa logistique en privilégiant des solutions techniques facilement transportables et rapides à mettre en oeuvre.
Le refuge des Cortalets est emblématique du massif et de notre région. Il incarne la porte d’entrée orientale des Pyrénées. C’est un très beau sujet d’architecture par sa situation mais également par le défi qu’il relève. Il incarne pour nous ce que sera la rénovation d’un bâtiment à l’avenir; préserver le « déjà la », économiser les ressources, penser l’autonomie et trouver la clef pour améliorer son fonctionnement et sa qualité d’usage.
Maitrise d'ouvrage Club Alpin Français
Maitrise d'oeuvre Landkraft, architectes mandataires
Déca-laage, architectes / Der Sahakian, paysagiste / EcoZimut, BE thermique / Terrell, BE structure / ABCDécibel, BE acoustique / Romain Baldet, économiste
Surface 830 m²
Budget 3 M € TTC
concours